Vejledende priser
4.000 - 5.250 kr.

Få indsigt i priserne for opsætning af Ikea-køkken og bryggers med vores guide, baseret på faktiske tilbud fra Handyhand-platformen. Denne guide hjælper dig med at planlægge dit projekt økonomisk.
4.000 - 5.250 kr.
Hjælp til Handyman
Opret en opgave, modtag bud og få opgaven udført
Her er et eksempel på en rigtig opgave, der blev løst på Handyhand, Opsætning af Ikea-køkken & bryggers. Dette er en god måde at få en idé om, hvad andre har betalt for en lignende opgave.








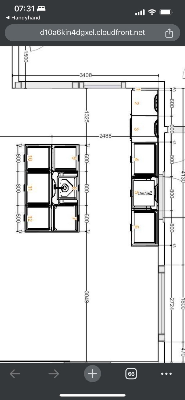
Opsætning af samlet Ikea-køkken & bryggers: Ingen udfordringer. ca. 14 elementer hvori der i disse 14 elementer er 2 håndvaske, samt Køle/frys, køgeplade og opvaskemaskine som skal tilsluttes. Elementerne er samlet, der er ryddet op og klar til når du kommer. Det gamle køkken/bryggers er nedtaget. Så opgaven er let. Der er fri adgang til området. Jeg har vedhæftet en PDF omkring projektet. Derefter opmåling, afhentning og installation af bordplade i Bauhaus.
Opgaven omfatter opsætning af et nyt Ikea-køkken og bryggers med i alt 14 elementer, herunder håndvaske, køle/frys, kogeplade og opvaskemaskine. Ifølge data fra Handyhands er der forskellige prisniveauer for denne type installation, som kan variere afhængigt af kvaliteten af arbejdet og materialerne.
| Prisniveau | Pris | Dette får du |
|---|---|---|
| Lav | 4.000 kr | Basisinstallation med fokus på funktionalitet |
| Mellem | 4.625 kr | Standardinstallation med god kvalitet og finish |
| Høj | 5.250 kr | Premiuminstallation med ekstra opmærksomhed på detaljer |
Kvalitet: Basisinstallation med fokus på funktionalitet.
Kvalitet: Standardinstallation med god kvalitet og finish.
Kvalitet: Premiuminstallation med ekstra opmærksomhed på detaljer.
En gennemgang af 40 lignende opgaver på Handyhand viser, at den gennemsnitlige pris for opsætning af Ikea-køkken og bryggers ligger på 8.842,84 kr. Den laveste registrerede pris var 2.052 kr., mens den højeste pris nåede op på 11.767 kr. I gennemsnit modtager man 4,4 tilbud pr. opgave, hvilket giver en god mulighed for at vælge det bedste tilbud.
Man kan typisk forvente at modtage tilbud inden for kort tid efter oprettelsen af sin opgave. Prisen påvirkes af flere faktorer, herunder opgavens kompleksitet, antallet af enheder, der skal monteres, samt den geografiske placering. Det er derfor vigtigt at overveje disse faktorer, når man indhenter tilbud.
Faktiske priser og bud kan variere, så det er en god idé at indhente flere tilbud for at få et klart billede af, hvad man kan forvente.
| Opgave | Gns. bud | Antal bud |
|---|---|---|
| Opsætning af køkken | 6.250 kr | 1 bud |
| Opsætning af IKEA Køkken | 9.853 kr | 2 bud |
| Opsætning af køkken | 2.052 kr | 6 bud |
| Samling og opsætning af IKEA Køkken | 9.679 kr | 7 bud |
| Samling og opsætning af Ikea køkken | 5.841 kr | 5 bud |
Du kan altid modtage tilbud ved gratis at oprette din opgave på Handyhand.dk

Gns. bud: 9.679 kr.
Gns. bud: 11.767 kr.

Gns. bud: 8.000 kr.

Gns. bud: 7.125 kr.

Gns. bud: 8.500 kr.

Gns. bud: 11.000 kr.


Gns. bud: 4.300 kr.

Gns. bud: 13.929 kr.

Gns. bud: 2.250 kr.

Gns. bud: 12.500 kr.

Gns. bud: 24.125 kr.

Gns. bud: 5.380 kr.
Gns. bud: 7.313 kr.

Gns. bud: 10.166 kr.

Gns. bud: 5.000 kr.

Gns. bud: 2.500 kr.

Gns. bud: 6.333 kr.

Gns. bud: 6.250 kr.

Gns. bud: 9.853 kr.

Gns. bud: 2.052 kr.

Gns. bud: 5.841 kr.

Gns. bud: 8.767 kr.

Gns. bud: 3.000 kr.

Gns. bud: 10.250 kr.

Gns. bud: 4.967 kr.

Gns. bud: 3.553 kr.

Gns. bud: 16.900 kr.

Gns. bud: 9.000 kr.

Gns. bud: 555 kr.

Gns. bud: 7.000 kr.

Gns. bud: 249 kr.

Gns. bud: 13.000 kr.

Gns. bud: 11.500 kr.

Gns. bud: 3.433 kr.

Gns. bud: 9.300 kr.

Gns. bud: 7.833 kr.

Gns. bud: 10.000 kr.

Gns. bud: 10.500 kr.

Gns. bud: 14.604 kr.
Beskriv din opgave og modtag et onlineestimat ud fra de bedst bedømte udbydere, på under 1 minut
Baseret på 300k+ opgaver
Bruger AI til at udregne pris
Matcher med rigtige opgaver
Når du skal have opsat dit Ikea-køkken og bryggers, kan det være en god idé at hyre professionelle håndværkere med relevant faglig ekspertise. Faggrupper som tømrer, elektriker og murer har den nødvendige erfaring til at sikre en korrekt og effektiv installation.
Du kan finde relevante serviceudbydere på Handyhand, som kan hjælpe med opsætningen af dit nye køkken og bryggers.
Ja, det er muligt at lave det selv, men vær opmærksom på, at det kræver grundlæggende værktøjsfærdigheder og erfaring med montering.
Det tager normalt 1-3 dage at opsætte et Ikea-køkken, afhængigt af kompleksiteten og antallet af elementer.
Du skal bruge en boremaskine, skruetrækker, vaterpas, målebånd og en hammer for at sikre en korrekt installation.