Vejledende priser
3.000 - 4.800 kr.

Denne prisguide om maling af lejlighed præsenterer faktiske tilbud fra Handyhand-platformen. Få indsigt i omkostningerne og planlæg dit næste malerprojekt effektivt.
3.000 - 4.800 kr.
Hjælp til Indørs malerarbejde
Opret en opgave, modtag bud og få opgaven udført
Her er et eksempel på en rigtig opgave, der blev løst på Handyhand, Maling af Lejlighed. Dette er en god måde at få en idé om, hvad andre har betalt for en lignende opgave.
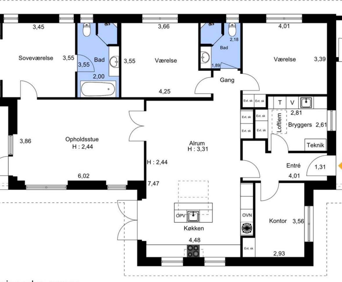
Detajler: Maling af vægge Har vedhæftet PDF med billeder og plantegning Køkken skal Males (Ikke loft) Gang skal Males + loft Lille gang mellem toilet og værelse skal males + loft Lille værelse skal males + loft Lille og Store stue skal males (Ikke loft/stukke) Der skal ikke males: Badeværelse Lister, Dør og vindues karme, træpaneler Stukke / loft i lille + stor stue
Opgaven omfatter maling af vægge i flere rum i boligen, herunder køkken, gang, lille gang, lille værelse samt stuerne. Ifølge data fra Handyhands findes der forskellige prisniveauer for denne type malerarbejde, som kan variere afhængigt af kvaliteten af materialer og udførelse.
| Prisniveau | Pris | Dette får du |
|---|---|---|
| Lav | 3.000 kr | Grundlæggende maling af vægge med standardmaterialer. |
| Gennemsnit | 4.060 kr | God kvalitet maling og professionel udførelse. |
| Høj | 4.800 kr | Premium materialer og ekspertise i malerarbejde. |
Kvalitet: Grundlæggende kvalitet med fokus på pris.
Kvalitet: God kvalitet med professionelt arbejde.
Kvalitet: Premium kvalitet med fokus på detaljer.
En gennemgang af 40 lignende opgaver på Handyhand viser, at den gennemsnitlige pris for maling af lejlighed er 11.304,29 kr. Det laveste tilbud, der blev indhentet, var 205 kr., mens det højeste nåede op på 20.000 kr. I gennemsnit modtager hver opgave 6,1 tilbud, hvilket giver en god mulighed for at vælge den bedste pris og kvalitet.
Typisk kan du forvente at modtage tilbud inden for et par dage efter, at du har oprettet din opgave. Prisen kan påvirkes af flere faktorer, herunder lejlighedens størrelse, antallet af rum, og hvilken type maling der anvendes. Det er også vigtigt at overveje, om der er behov for forarbejde, som f.eks. spartling eller reparation af vægge, hvilket kan øge omkostningerne.
Det er værd at bemærke, at faktiske priser og bud kan variere afhængigt af lokale forhold og malerens erfaring.
| Opgave | Gns. bud | Antal bud |
|---|---|---|
| Maling af Lejlighed | 4.060 kr | 5 |
| Maling af Lejlighed | 4.250 kr | 2 |
| Maleropgave i lejlighed | 12.667 kr | 3 |
| Let maling af nyere lejlighed | 212 kr | 3 |
| Maling af vægge, loft, paneler, døre og karme | 5.025 kr | 9 |
Du kan også læse vores overordnede prisguide: Maling af lejlighed pris for flere detaljer om priser og muligheder.
Du kan altid modtage tilbud ved gratis at oprette din opgave på Handyhand.dk

Gns. bud: 5.344 kr.

Gns. bud: 3.568 kr.

Gns. bud: 4.933 kr.

Gns. bud: 35.071 kr.

Gns. bud: 2.357 kr.

Gns. bud: 24.999 kr.

Gns. bud: 15.625 kr.

Gns. bud: 45.000 kr.

Gns. bud: 205 kr.

Gns. bud: 11.364 kr.

Gns. bud: 16.333 kr.

Gns. bud: 4.704 kr.

Gns. bud: 11.375 kr.

Gns. bud: 14.050 kr.

Gns. bud: 16.338 kr.

Gns. bud: 27.000 kr.

Gns. bud: 4.060 kr.

Gns. bud: 4.250 kr.

Gns. bud: 12.667 kr.

Gns. bud: 212 kr.

Gns. bud: 10.283 kr.

Gns. bud: 20.000 kr.

Gns. bud: 9.491 kr.

Gns. bud: 233 kr.

Gns. bud: 19.045 kr.

Gns. bud: 8.929 kr.

Gns. bud: 4.603 kr.

Gns. bud: 21.051 kr.

Gns. bud: 5.603 kr.

Gns. bud: 4.677 kr.

Gns. bud: 6.928 kr.

Gns. bud: 5.644 kr.

Gns. bud: 1.500 kr.

Gns. bud: 2.276 kr.

Gns. bud: 7.950 kr.

Gns. bud: 5.078 kr.

Gns. bud: 17.184 kr.

Gns. bud: 12.333 kr.
Beskriv din opgave og modtag et onlineestimat ud fra de bedst bedømte udbydere, på under 1 minut
Baseret på 300k+ opgaver
Bruger AI til at udregne pris
Matcher med rigtige opgaver
Når det kommer til maling af lejlighed, er det vigtigt at hyre de rette faggrupper, der kan sikre et professionelt og holdbart resultat. Typisk vil man overveje at ansætte malere eller håndværkere med specialisering inden for maling og overfladebehandling.
For at finde kompetente fagfolk til maling af din lejlighed kan du besøge service side på Handyhand.
Ja, du kan male lejligheden selv, men det kræver tid og erfaring. Udfordringer som ujævne overflader og farvevalg kan opstå, hvis du ikke har prøvet det før.
Typisk tager det 1-3 dage at male en lejlighed, afhængig af rummenes størrelse og forberedelse. Planlæg ekstra tid til tørretid mellem lagene.
Nej, du behøver normalt ikke tilladelser til at male indendørs. Dog kan det være nødvendigt at informere din udlejer, hvis du lejer boligen.